Menu
Need help!
Got questions or need assistance with your Industry needs?
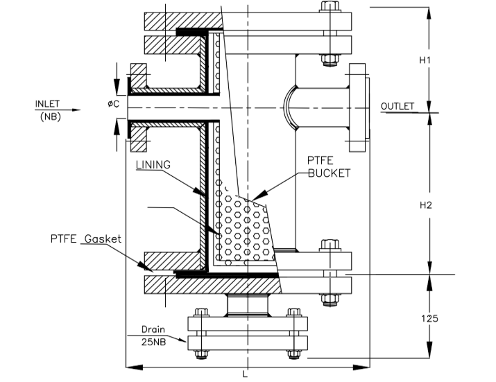
PTFE Lined Basket Strainer
PTFE lined basket strainers are designed to remove solid particles from corrosive fluid streams while protecting downstream equipment. The sturdy metal housing is lined with chemically inert PTFE to ensure superior corrosion resistance and contamination-free operation. Equipped with a removable basket element for easy cleaning and maintenance, these strainers are ideal for chemical, pharmaceutical, and industrial processing systems.
Key Features:
- Heavy-duty construction
- Effective particle filtration
- Excellent chemical resistance
- Easy basket removal
Specifications:
| Size (NB) | H1 | H2 | L |
|---|---|---|---|
| 25 | 120 | 170 | 178 |
| 40 | 120 | 180 | 204 |
| 50 | 120 | 220 | 230 |
| 65 | 125 | 220 | 310 |
| 80 | 170 | 220 | 350 |
| 100 | 170 | 220 | 350 |




Material Of Construction (MOC):
- Body : Fabricated with A106 Gr. B SCH40 Pipe
- Flanges: Material as Per IS 2062 GR B /ASTM A105 Dimensions As per ASME B16.5 #150. JIS or DIN Std Options available
- Lining: Virgin PTFE in compliance with ASTM F1545-15a.
- Bucket : PTFE Mesh Sandwitched in two liners with one end close
- Fastners : CS Plated